关怀版
区县规划自然资源局
首页
公开
服务
互动
专题
垂直管理区规划自然资源局
涪陵区规划自然资源局
渝中区规划自然资源局
大渡口区规划自然资源局
江北区规划自然资源局
沙坪坝区规划自然资源局
九龙坡区规划自然资源局
南岸区规划自然资源局
北碚区规划自然资源局
渝北区规划自然资源局
巴南区规划自然资源局
长寿区规划自然资源局
江津区规划自然资源局
合川区规划自然资源局
永川区规划自然资源局
南川区规划自然资源局
綦江区规划自然资源局
大足区规划自然资源局
璧山区规划自然资源局
铜梁区规划自然资源局
潼南区规划自然资源局
荣昌区规划自然资源局
两江新区规划自然资源局
您的位置:
首页
>
政务公开
>
法定主动公开内容
>
其他公告
>
建设项目批前公示
[索引号]
115000000092766604/2025-39439
[ 发文字号 ]
[ 主题分类 ]
其他
[ 发布机构 ]
市规划自然资源局
[ 成文日期 ]
2025-10-20
[ 体裁分类 ]
结果查询、公示
[ 发布日期 ]
2025-10-20
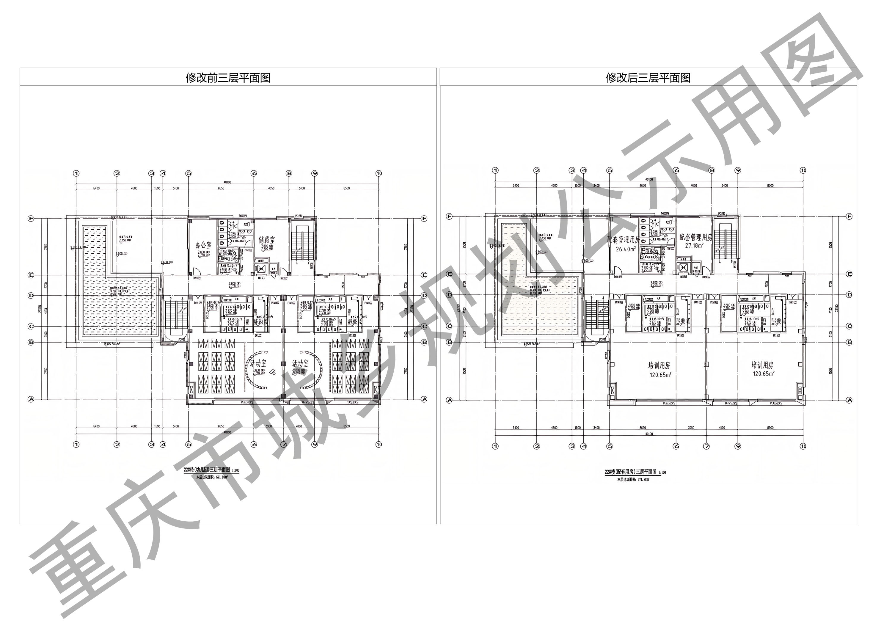
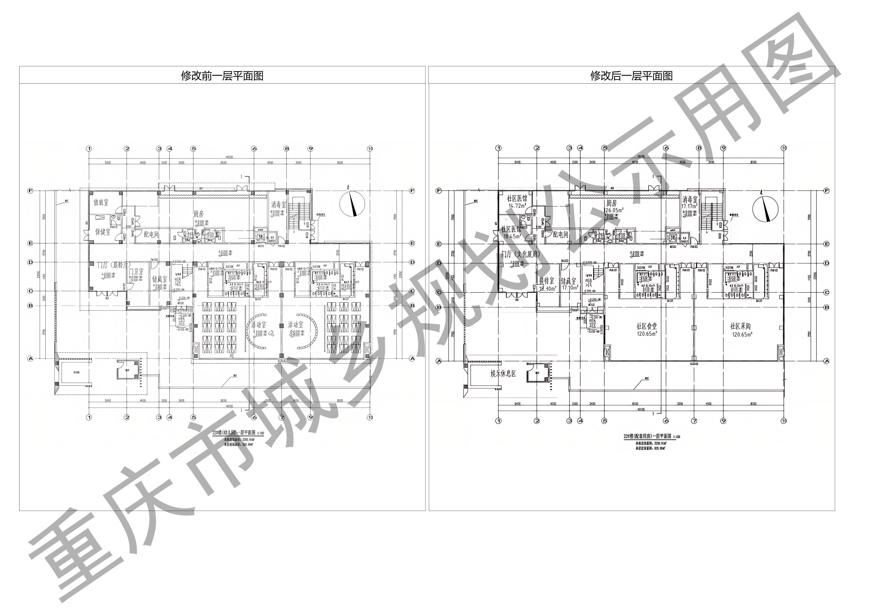
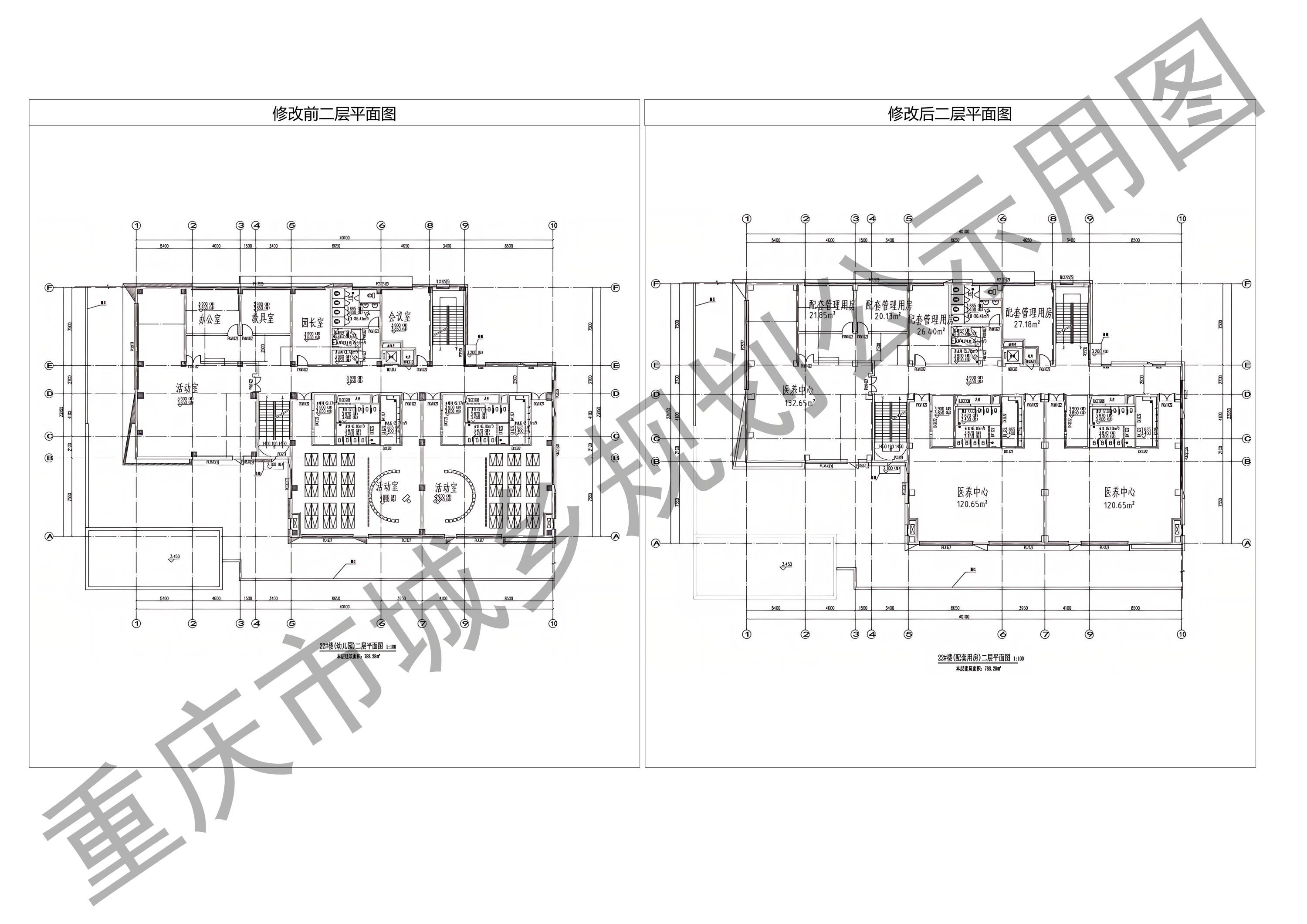
两江新区万科·四季花城三期项目幼儿园房屋用途变更公示
【
字体:
大
中
小
】