| [ 索引号 ] | 115000000092766604/2025-45864 | [ 发文字号 ] | |
| [ 主题分类 ] | 其他 | [ 体裁分类 ] | 结果查询、公示 |
| [ 发布机构 ] | 市规划自然资源局 | ||
| [ 成文日期 ] | 2025-12-08 | [ 发布日期 ] | 2025-12-08 |
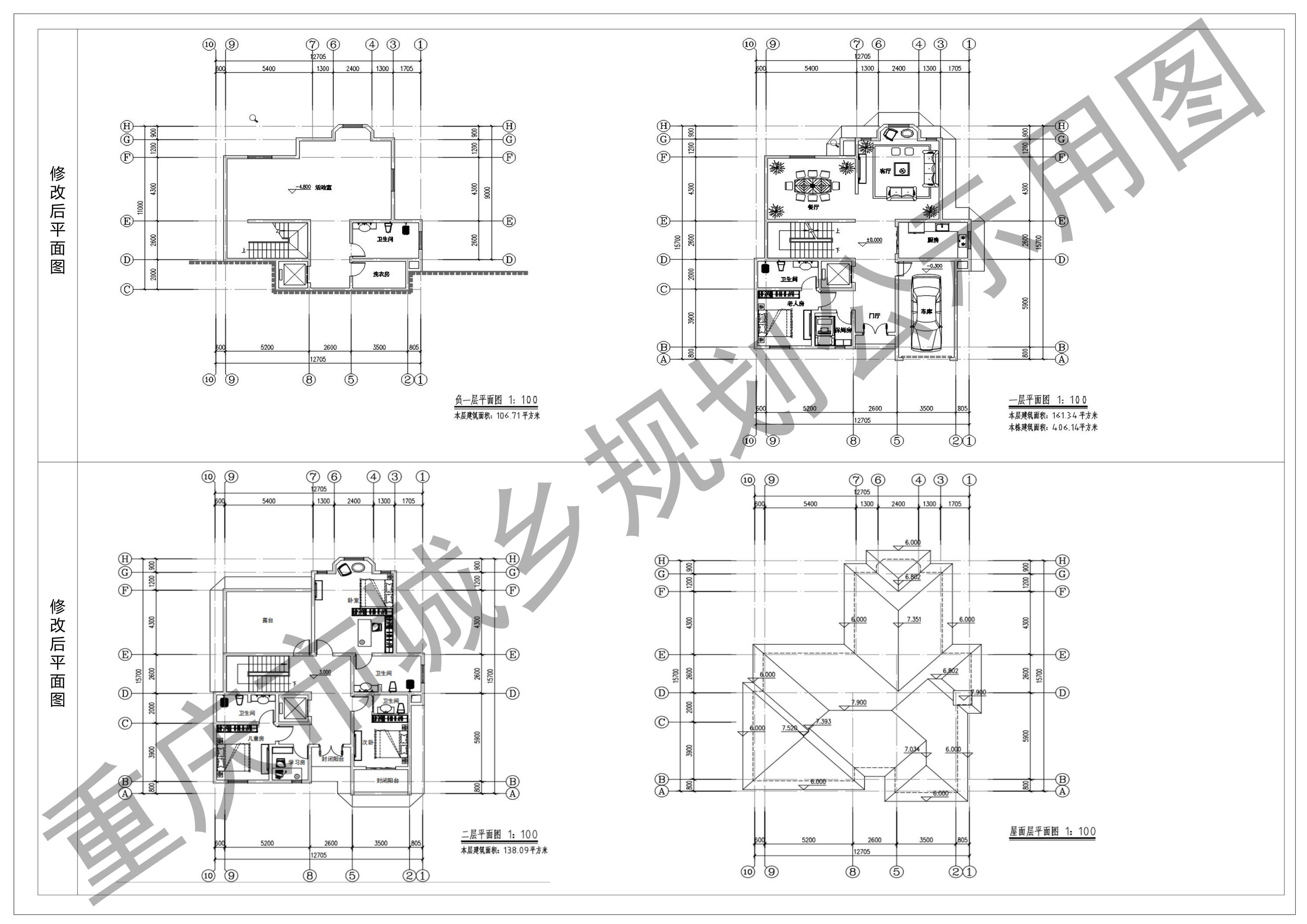
保利高尔夫花园206幢更新改造项目建筑工程设计方案公示



扫一扫在手机打开当前页

您当前的位置:首页>政务公开>法定主动公开内容>其他公告>建设项目批前公示
| [ 索引号 ] | 115000000092766604/2025-45864 | [ 发文字号 ] | |
| [ 主题分类 ] | 其他 | [ 体裁分类 ] | 结果查询、公示 |
| [ 发布机构 ] | 市规划自然资源局 | ||
| [ 成文日期 ] | 2025-12-08 | [ 发布日期 ] | 2025-12-08 |
保利高尔夫花园206幢更新改造项目建筑工程设计方案公示


