| [ 索引号 ] | 125001117842106899/2025-00111 | [ 发文字号 ] | |
| [ 主题分类 ] | 建设规划 | [ 体裁分类 ] | 公告公示 |
| [ 发布机构 ] | 大足区规划自然资源局 | ||
| [ 成文日期 ] | 2025-11-27 | [ 发布日期 ] | 2025-11-27 |
棠华府15#、17#至23#楼及三期地下建筑局部调整公示
“棠华府”项目业主和相关利害关系人:
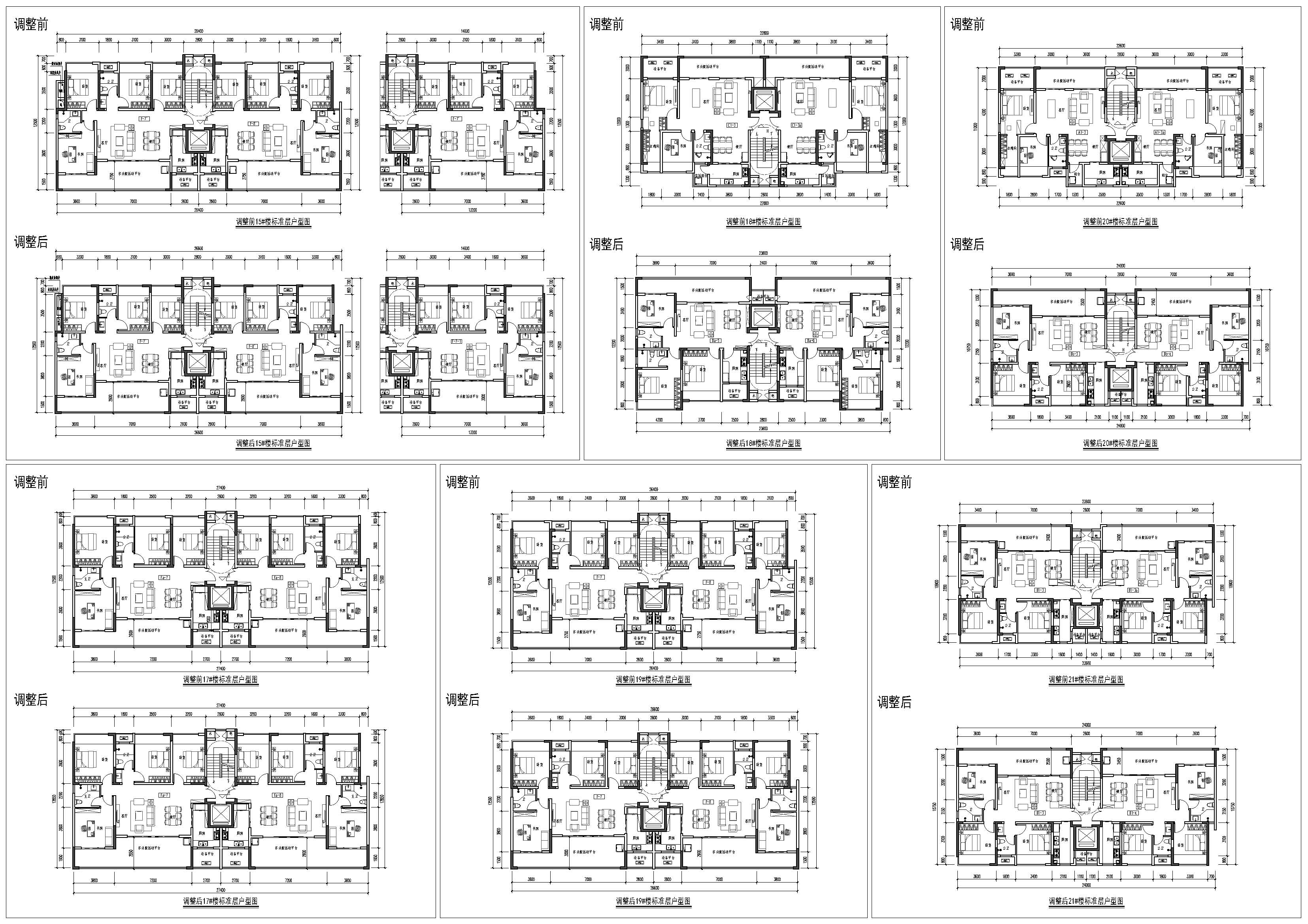
“棠华府”项目位于重庆市大足区清明桥路与二环南路东段交汇处,由重庆棠华房地产开发有限公司开发建设。为更好地适应市场需求,现建设单位申请对该项目15#、17#至23#楼及三期地下建筑作如下调整:
一、优化调整15#、17#至21#楼住宅户型;
二、优化调整22#和23#楼布局,22#楼中物管用房面积增加;
三、户型调整后三期地下建筑轮廓线相应调整,调整后地下车位个数不变;
经我局审查,以上调整满足相关规范要求,现对棠华府局部调整方案进行公示。
若贵单位或个人有意见或建议,请注明身份(单位名称、机构代码证及法定代表人身份证明/个人姓名及身份证复印件)、联系电话和邮寄地址,于2025年12月11日前将书面意见、房产证(购房合同)等证明涉及其利害关系的材料邮寄或直接提交至重庆市大足区规划和自然资源局。逾期未提出的,视为自动放弃权利。
“棠华府”项目业主和相关利害关系人可自公示期满之日起五个工作日内向重庆市大足区规划和自然资源局提出书面听证申请和提交房产证(购房合同)等证明涉及其重大利害关系的材料。逾期未提出的,视为自动放弃听证权利。
公示时间:2025年11月28日至2025年12月4日
公示地点:“棠华府”项目售房部、施工现场和重庆市大足区规划和自然资源局网站(https://ghzrzyj.cq.gov.cn/zz/dzq/)。
重庆市大足区规划和自然资源局
2025年11月27日
联系地址:重庆市大足区规划和自然资源局(大足区棠香街道五星大道北段1号)
邮政编码:402360
联 系 人:何老师 电话号码:43394705






首页
政务公开
渝快办
