中国政府网 | 重庆市人民政府网 区县规划自然资源局 |注册

重庆市江津区规划和自然资源局

您当前的位置:首页 >政务公开 >法定主动公开内容 >规划信息

[ 索引号 ] 11500000MB1972514E/2026-00034 [ 发文字号 ]
[ 主题分类 ] 建设规划 [ 体裁分类 ] 公告公示
[ 发布机构 ] 江津区规划自然资源局
[ 成文日期 ] 2026-03-27 [ 发布日期 ] 2026-03-27

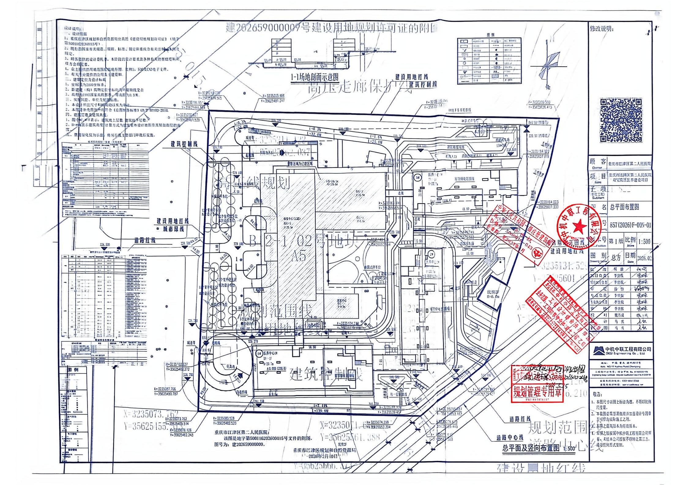
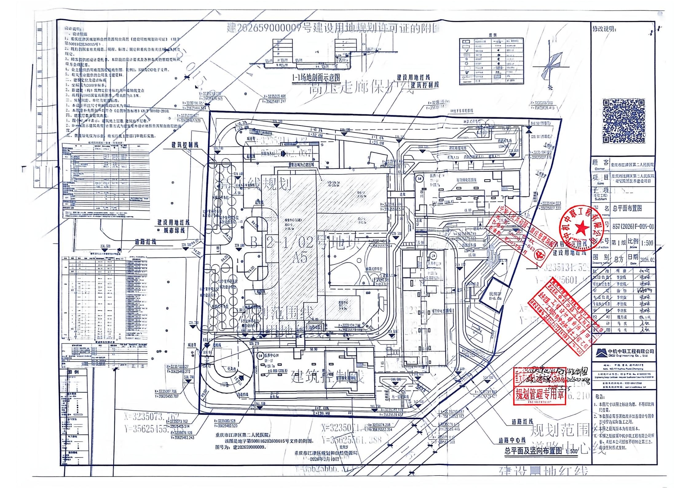
重庆市江津区第二人民医院双宝院区医养建设项目批后公布图

扫一扫在手机打开当前页