中国政府网
|
重庆市人民政府网
区县规划自然资源局
登录
注销
|
注册
重庆市
荣昌区规划和自然资源局
首页
政务公开
渝快办
垂直管理区规划自然资源局
重庆市涪陵区规划和自然资源局
重庆市渝中区规划和自然资源局
重庆市大渡口区规划和自然资源局
重庆市沙坪坝区规划和自然资源局
重庆市九龙坡区规划和自然资源局
重庆市南岸区规划和自然资源局
重庆市北碚区规划和自然资源局
重庆市巴南区规划和自然资源局
重庆市长寿区规划和自然资源局
重庆市江津区规划和自然资源局
重庆市合川区规划和自然资源局
重庆市永川区规划和自然资源局
重庆市南川区规划和自然资源局
重庆市綦江区规划和自然资源局
重庆市大足区规划和自然资源局
重庆市璧山区规划和自然资源局
重庆市铜梁区规划和自然资源局
重庆市潼南区规划和自然资源局
重庆市荣昌区规划和自然资源局
重庆市两江新区规划和自然资源局
重庆市高新区规划和自然资源局
您当前的位置:
首页
>
政务公开
>
法定主动公开内容
>
规划信息
[ 索引号 ]
11500000MB17722135/2026-00021
[ 发文字号 ]
[ 主题分类 ]
建设规划
[ 体裁分类 ]
公文
[ 发布机构 ]
荣昌区规划自然资源局
[ 成文日期 ]
2026-04-23
[ 发布日期 ]
2026-04-23
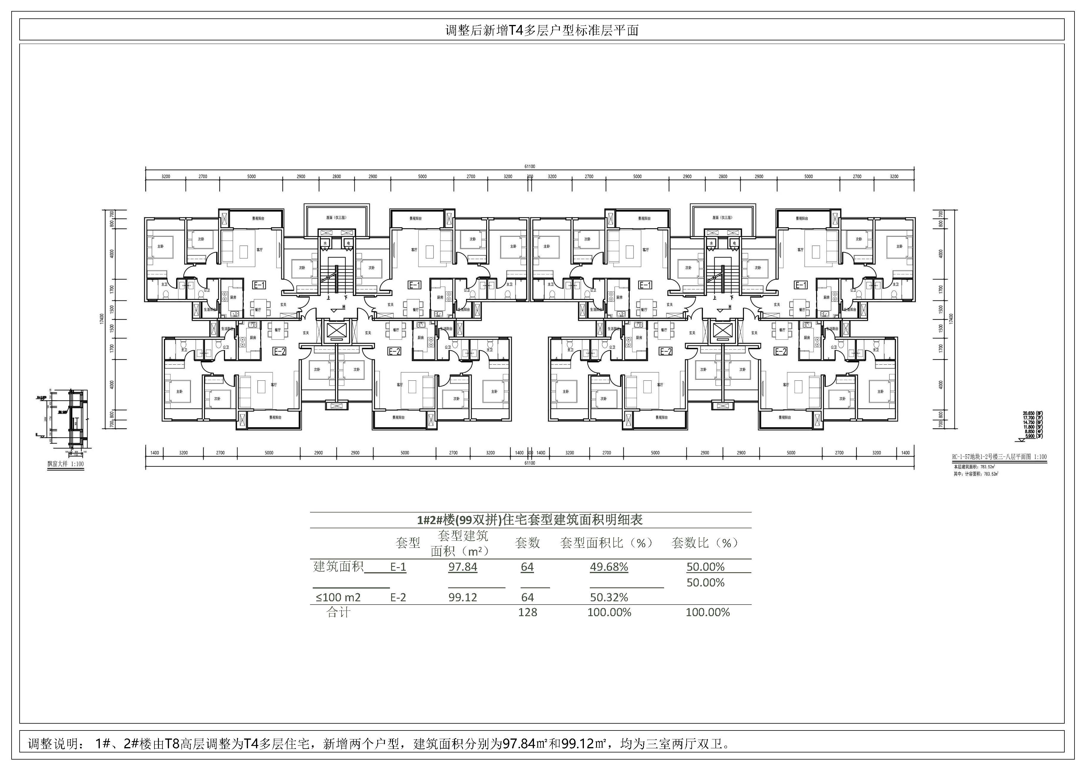
昕晖中航˙璟熙项目方案调整公示
大
中
小
扫一扫在手机打开当前页
15632076
昕晖中航˙璟熙项目方案调整公示
398509
规划信息
20
2026-04-23
首页
>
子站
>
荣昌区
>
政务公开
>
法定主动公开内容
>
规划信息